Public Toilet and Hygiene during COVID19

Pun: Chat offers design solutions for maintaining hygiene in Public Toilets during COVID-19

 
Public Toilets Illustration.gif
 

Post-covid life will be ruled by measures for safety in various facets of public life. For many, a very private space is a part of public space as seen in the use of public toilets. The experience of using a public toilet is generally far from pleasant. Public toilets are a critical intervention to combat open defecation, restore safety, hygiene and dignity to individuals. We must seize the current crisis as an opportunity to introduce design measures and improved building regulation codes with infection control measures and hygiene regimes.

 
Caya Projects | Community Toilets | Jaipur

Caya Projects | Community Toilets | Jaipur

Sentinel Digital Desk

Sentinel Digital Desk

 

Pun: Chat - An Architectural Talk, a documentation and design studio, has some quick arrangements for operating public toilets, wherein people can use these common spaces without encountering each other and with minimal surface contact.

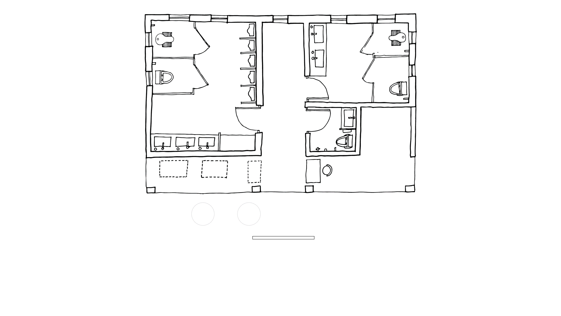
Pun: Chat’s proposal is based on the idea that existing public toilets could have a better movement pattern inside and outside by splitting the entrance and exit and promoting free movement in the space without any fear.

OUTSIDE

 
Interventions

Interventions

 

1. Designing an arrangement for the public such that they maintain 6’ distance and do not encounter one another while using public spaces.

a. This can be done by demarcating spaces for standing in a queue outside - before entering the public toilet. Only 2 people should occupy the marked circles outside the toilet.

2. The toilet must be accessible to a maximum of 2 people (each for male and female) at any given time. This arrangement will allow one person to use the toilet and another to make payment.

3. The entrance should have two counters, one for hand wash and one for money collection.

4. A foot-operated hand - sanitizing station should be installed with instructions for compulsory use before entering the public toilet.

5. There should also be a digital payment counter which can simply be a box for depositing money. Adopting this system discourages immediate contact with potentially infected surfaces. When the box is full, the money can be emptied out after sanitization.

6. The entrance doors should be made to open and close using feet or by attaching a forearm operated handle.

 
Movement Pattern for Individual Use. Sanitizing before and after use of the toilet will avoid contamination of surfaces. It is important that instructions be given at various points to encourage people to avoid touching surfaces and wash hands regul…

Movement Pattern for Individual Use. Sanitizing before and after use of the toilet will avoid contamination of surfaces. It is important that instructions be given at various points to encourage people to avoid touching surfaces and wash hands regularly.

 
 
Movement Pattern for Multi-Person Use

Movement Pattern for Multi-Person Use

 

INSIDE

1. The use of foot-operated doors should be encouraged at public facilities to eliminate contamination through door handles. A more expensive alternative to this is a sensor-based door.

a. To avoid touching door handles, a design solution is to have ‘U-shaped’ entrances for toilets instead of doors. This helps in obstructing the inside view from the passage while eliminating contact with a potentially contaminated surface.

 
In controlled environments such as malls and airports, design of public toilets with ‘S / U-shaped entrance to avoid use of doors’

In controlled environments such as malls and airports, design of public toilets with ‘S / U-shaped entrance to avoid use of doors’

 

2. Rethinking toilets to include foot-operated systems while using faucets, soap dispensers, and flushing can also be a viable option. It would be wise to use gloves while handling any surface, or else simply using a paper towel.

Propose more Indian toilets to control contamination through surfaces.

Propose more Indian toilets to control contamination through surfaces.

Install hand sanitizing stations outside the using a public toilet.

Install hand sanitizing stations outside the using a public toilet.

Preferably use doors that are foot-operated and have vision panels.

Preferably use doors that are foot-operated and have vision panels.

3. We all know that the virus is also present in human poop, and no amount of handwashing can rub off the virus from our body!

a. Making lids compulsory in public toilet commodes is a necessary action. Every flush causes toilet plumes to rise in the air along with germs, which can be avoided by flushing with the lid down.  Also, users must be instructed to wait for some time before getting into a toilet that has just been vacated.

b. Designing toilet seats in a way that fewer body parts encounter it can also be an effective long-term solution. This can also be done by designing sensor-activated seats and lids that go up and down depending on the use. In the meantime, we can stick to using the Indian Commode to avoid contact with toilet seats.

4. Introduction of self-cleaning toilets that flush/sanitize when the door gets shut, will stimulate an auditory and olfactory reaction, which will be a well-received gesture to most. In case this is not feasible, a kick-operated flushing/sanitizing system can also be installed.

5. Sinks with more depth and an increased slope must be made standard, to reduce the back-splash of water onto the user.

6. Blocking alternate urinals and installing stand-alone stations of self-cleaning powder or disinfectant for sanitization at regular intervals is an effective method that can be adopted for upkeep and maintenance.

7. Use of materials that do not require too much cleaning, or are self repellents of dirt must be made common. The design and maintenance should strictly avoid the use of non-porous materials.

While it seems that the risk of catching the virus is low, as a caution we need to start practicing many routines differently. The pandemic has brought about a change in thinking towards hygiene that no mission could have brought. It will make us conscious about maintaining our personal as well as community hygiene. We must understand how each decision can lead to varied outcomes for different people. The future holds many possibilities, let us hope that we are headed from social distancing to social change for building a more resilient and humane society.

Author:

Ar. Nisha Parikh

Graphics:

Ar. Pragya Chauhan

 
 
 
Guest UserComment